
Slnečný kolektor
so zväčšenou absorpčnou plochou, konštrukčne vychádzajúci z najobľúbenejšieho modelu TS300. Medené potrubie je k absorbéru pripojené unikátnou patentovo-chránenou technológiou. Je vhodný na všetky bežné aplikácie ako príprava TÚV, ohrev bazénov, prípadne podpora vykurovania. Obzvlášť vhodný je na použitie pri bytových domoch a iných zariadeniach s potrebou inštalácie väčšieho počtu kolektorov. Tak ako všetky modely radu TS, poskytuje i tento dostatočný výkon, spoľahlivosť, dlhú životnosť a nadčasový dizajn.




Rovná strecha Voľný terén / Fasáda Šikmá strecha nad strešnou krytinou Šikmá strecha s prizdvihnutím Šikmá strecha integrácia
Plochý kolektor so zväčšenou plochou určený pre solárne systémy s obehovým čerpadlom. Inštaluje sa vo vertikálnej polohe, kolektory sú spájané paralelne, maximálne 8 kolektorov v jednom rade.
Základ kolektora tvorí kompaktná lisovaná vaňa z Al-Mg plechu, v ktorej je upevnené bezpečnostné solárne sklo pomocou zasklievacích líšt z hliníkových eloxovaných profilov. Absorbér sa skladá z tvarovaného hliníkového plechu so selektívnou konverznou vrstvou, ktorý obopína meander z medenej rúrky (patentované riešenie).
Kolektor TS500 je vyrábaný v prevedeniach:
- s prírubovými vývodmi (pripája sa k hydraulickému okruhu rýchlospojkami ø26 mm)
- s vývodmi s prevlečnými maticami
Plochý termický kolektor TS500 | |
---|---|
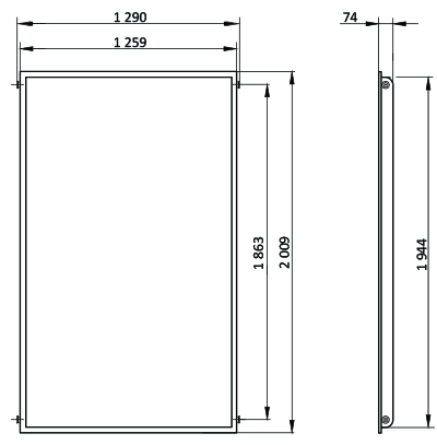
Rozmer | 2 009 x 1 290 x 74 mm |
Pôdorysná plocha | 2,53 m2 |
Absorpčná plocha | 2,26 m2 |
Apertúrna plocha | 2,26 m2 |
Spájací rozmer | 1 290 mm |
Hmotnosť | cca 44 kg |
Kvapalinový obsah | 1,72 l |
Maximálny pretlak teplonosnej kvapaliny | 600 kPa |
Odporúčaný prietok teplonosnej kvapaliny | 30-100 l/h na jeden kolektor |
Pripájacie vývody |
|
Puzdro teplotného senzora | pre senzor ø6 mm |
Krycie sklo | solárne bezpečnostné, hrúbka 4 mm |
Skriňa kolektora | výlisok z nekorodujúceho Al-Mg plechu |
Tepelná izolácia | minerálna, hrúbka 40 mm |
Selektívna konverzná vrstva | ALOx (čierny) |
Slnečná absorbivita aAM1.5 | 95% |
Tepelná emisivita e82°C | 13% ALOx |
Optická účinnosť | 81% |
Odporúčaná prac. teplota | pod 100°C |
Stagnačná teplota, (1000 W/m2, 30°C) | 196°C |
Max. výkon kolektora (1000 W/m2) | 1 828 W |