
Kolektor TS300
je vďaka svojmu pomeru cena a výkon najobľúbenejším modelom z rady TS. Je určený najmä na prípravu teplej úžitkovej vody, ohrev bazénov, prípadne aj na podporu vykurovania. Poskytuje dostatočný výkon, spoľahlivosť, dlhú životnosť a atraktívny dizajn. Patentované riešenie spoja medeného meandra a hliníkového absorbéra poskytuje vynikajúci odvod tepla a vysokú účinnosť. Je ideálnym zdrojom tepla pre obyvateľov rodinných i bytových domov.




Rovná strecha Voľný terén / Fasáda Šikmá strecha nad strešnou krytinou Šikmá strecha s prizdvihnutím Šikmá strecha integrácia
Plochý kolektor určený pre solárne systémy s obehovým čerpadlom. Inštaluje sa vo vertikálnej polohe, kolektory sú spájané paralelne, maximálne 10 kolektorov v jednom rade.
Základ kolektora tvorí kompaktná lisovaná vaňa z Al-Mg plechu, v ktorej je upevnené bezpečnostné solárne sklo pomocou zasklievacích líšt z hliníkových eloxovaných profilov. Absorbér sa skladá z tvarovaného hliníkového plechu so selektívnou konverznou vrstvou, ktorý obopína meander z medenej rúrky (patentované riešenie).
Kolektor TS300 je vyrábaný v prevedeniach:
- s prírubovými vývodmi (pripája sa k hydraulickému okruhu rýchlospojkami ø26 mm)
- s vývodmi z Cu rúrky ø18×0,8mm (pripája sa k hydraulickému okruhu spájkovaním)
- s vývodmi s prevlečnými maticami
Plochý termický kolektor TS300 | |
---|---|
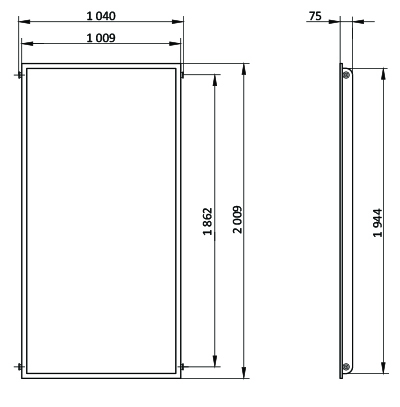
Rozmer | 2 009 x 1 009 x 75 mm |
Pôdorysná plocha | 2,031 m2 |
Absorpčná plocha | 1,78 m2 |
Apertúrna plocha | 1,78 m2 |
Spájací rozmer | 1 040 mm |
Hmotnosť | 36,1 kg |
Kvapalinový obsah | 1,57 l |
Maximálny pretlak teplonosnej kvapaliny | 600 kPa |
Odporúčaný prietok teplonosnej kvapaliny | 30-100 l/h na jeden kolektor |
Pripájacie vývody |
|
Puzdro teplotného senzora | pre senzor ø6 mm |
Krycie sklo | solárne bezpečnostné, hrúbka 4 mm |
Skriňa kolektora | výlisok z nekorodujúceho Al-Mg plechu |
Tepelná izolácia | minerálna, hrúbka 40 mm |
Selektívna konverzná vrstva | ALOx (čierny) |
Slnečná absorbivita aAM1.5 | 95% |
Tepelná emisivita e82°C | 13% ALOx |
Optická účinnosť | 81% |
Odporúčaná prac. teplota | pod 100°C |
Stagnačná teplota, (1000 W/m2, 30°C) | 190°C |
Max. výkon kolektora (1000 W/m2) | 1 444 W |